LINK
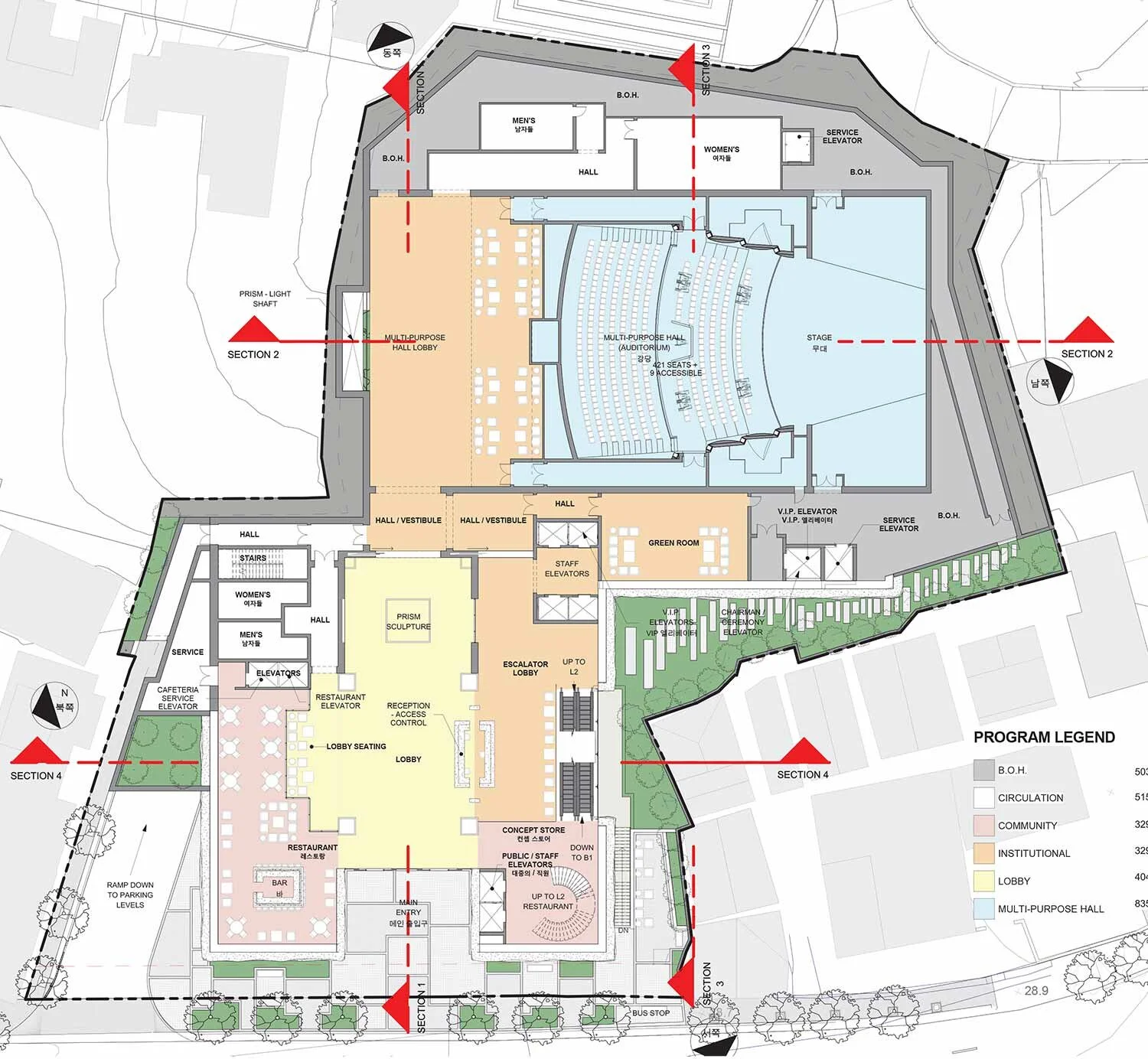
The building form represents the link between the private sector components and that of the concert and performance arts hall within the core of the building.
The building form represents the link between the private sector components and that of the concert and performance arts hall within the core of the building.